南丹市定住促進サイトnancla

南丹市地域振興課定住促進サポートセンターお問い合わせ TEL:0771-68-1616

空き家バンク

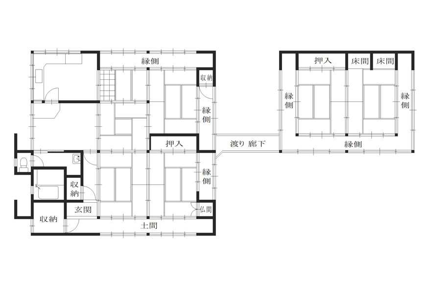
No535.日吉町佐々江の物件 1150万円
物件の間取り

※物件への直接訪問はご遠慮ください。

空き家 売買
土地の状況
空き家の状況
カテゴリー 絞り込み検索