
No538.美山町和泉の物件 880万円
- 【物件の所在地】
- 南丹市美山町和泉
- 【最寄の公共交通機関】
- 市バス 和泉停 徒歩約4分(約300m) JR日吉駅まで車で約25分(約21.3Km) JR園部駅まで車で約38分(約29.4Km) JR和知駅まで車で約24分(約18.6Km) 京都縦貫道園部ICまで車で約32分(約26.5Km)
- 【物件の設備】
-
水道:市営水道(公営水道)
電気:○(関西電力)
ガス:○(プロパンガス)
空調:○(1台あり)
風呂:○(灯油給湯器)
ガレージ:○(スペースあり(4台可))
トイレ:水洗(公共下水) - 【前面道路(道路幅員)】
- 公道 (約6m)
- 【賃貸・売買の意向】
-
売買
希望売却価格:880万円
売買の条件:
宅建業者の介入
- 【その他】
- 山つき
土地の状況
- 【土地の種類】
- 宅地
- 【面積】
- 378.72㎡(約114.56坪)山林 1157㎡
- 【都市計画】
- 都市計画区域外
空き家の状況
- 【物件の種類】
- 家屋
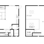
- 【建築構造】
- 木造亜鉛メッキ鋼板葺2階建
- 【建築面積】
- 1階 55.89㎡ 2階 45.95㎡
- 【建物建築時期】
- 平成15年8月
- 【建物現状程度】
- 良い






















