
New!No555.日吉町佐々江の物件 相談
- 【物件の所在地】
- 南丹市日吉町佐々江
- 【最寄の公共交通機関】
- 市バス佐々江停徒歩約1分(約70m) JR日吉駅まで車で約16分(約13Km) JR園部駅まで車で約29分(約21Km) 京都縦貫道園部ICまで車で約25分(約19Km)
- 【物件の設備】
-
水道:市営水道
電気:○(関西電力)
ガス:○(プロパンガス)
空調:×
風呂:○(ガス給湯器)
ガレージ:×
トイレ:汲み取り - 【前面道路(道路幅員)】
- 公道(約4m)
- 【賃貸・売買の意向】
-
売買
希望売却価格:相談
売買の条件:
- 【その他】
- ファミリー向け,古民家
- 【特記事項】
土砂災害警戒区域(土石流)
土地の状況
- 【土地の種類】
- 宅地
- 【面積】
- 585.12㎡(約177坪) 他 畑3筆計696㎡・山林3筆計3724㎡・原野1筆406㎡あり
- 【都市計画】
- 都市計画区域外
空き家の状況
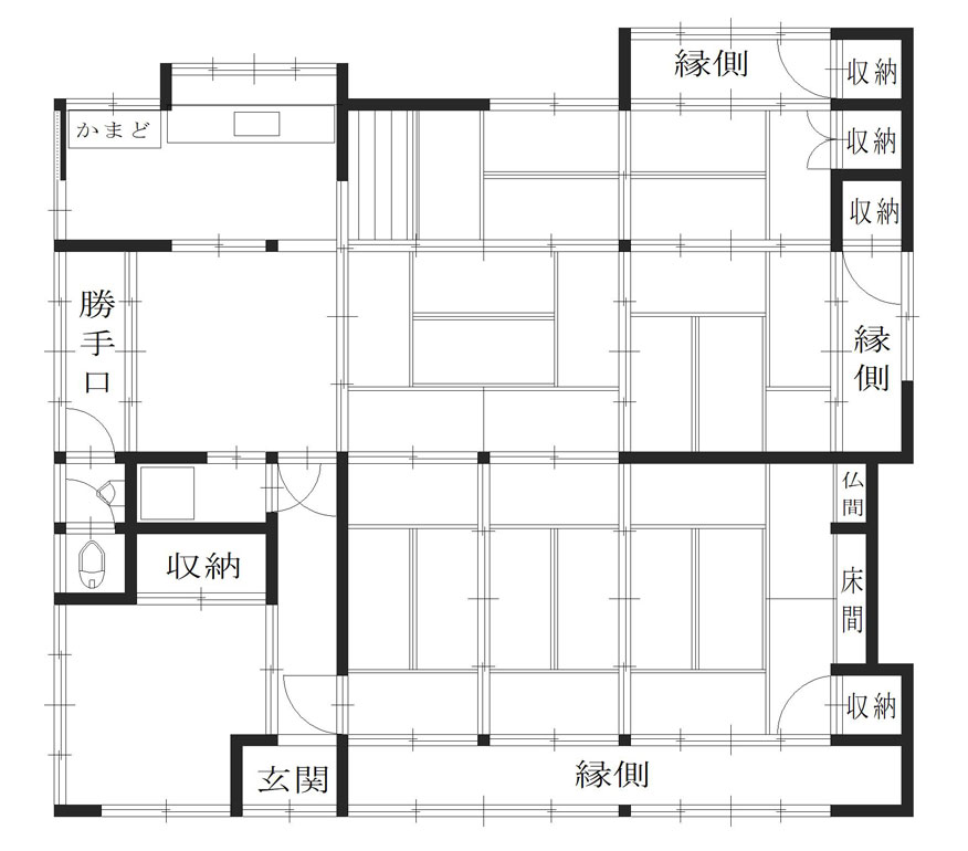
- 【物件の種類】
- 家屋
- 【建築構造】
- 木造草葺平屋建
- 【建築面積】
- 92.23㎡ 他 倉庫あり
- 【建物建築時期】
- 不明
- 【建物現状程度】
- 一部修繕要



