
No528.日吉町畑郷の物件 880万円
- 【物件の所在地】
- 南丹市日吉町畑郷
- 【最寄の公共交通機関】
- 市バス 畑郷停 徒歩約9分(約650m) JR胡麻駅まで車で約5分(約2.7Km) JR日吉駅まで車で約12分(約8.1Km) JR園部駅まで車で約27分(約17.8Km) 園部ICまで車で約23分(約18Km)
- 【物件の設備】
-
水道:市営水道
電気:○(関西電力)
ガス:○(プロパンガス)
空調:○
風呂:○(ガス給湯器)
ガレージ:○(スペースあり(1台))
トイレ:水洗(合併浄化槽) - 【前面道路(道路幅員)】
- 公道(約4m)
- 【賃貸・売買の意向】
-
売買
希望売却価格:880万円
売買の条件:
宅建業者の介入
- 【その他】
- ファミリー向け
土地の状況
- 【土地の種類】
- 宅地
- 【面積】
- 426.97㎡(約129坪)
- 【都市計画】
- 都市計画区域外
空き家の状況
- 【物件の種類】
- 家屋
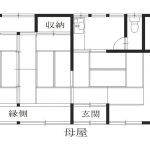
- 【建築構造】
- 木造瓦葺平屋建(母屋)・木造スレート葺平屋建(離れ)
- 【建築面積】
- 90.78㎡(母屋)・29.29㎡(離れ)
- 【建物建築時期】
- 昭和54年(母屋)・平成10年(離れ)























